Приказ Министерства градостроительной политики Калининградской области от 18.01.2023 № 13
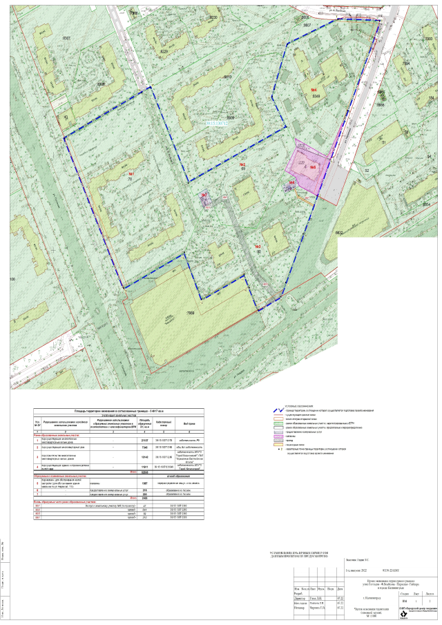
"Об утверждении проекта межевания территории в границах улиц Согласия – Ф. Воейкова – Нарвская – Гайдара в городе Калининграде"
(Зарегистрирован 19.01.2023 № ГР/42/2023)
"Об утверждении проекта межевания территории в границах улиц Согласия – Ф. Воейкова – Нарвская – Гайдара в городе Калининграде"
(Зарегистрирован 19.01.2023 № ГР/42/2023)
Номер опубликования: 3901202301240002
Дата опубликования:
24.01.2023
