Официальное опубликование правовых актов
ОФИЦИАЛЬНОЕ ОПУБЛИКОВАНИЕ
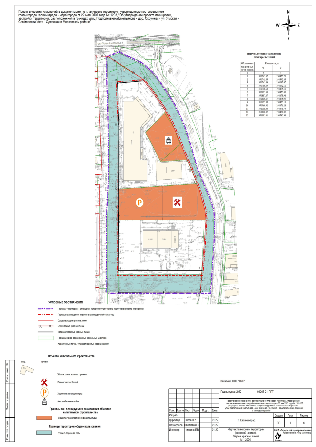
Приказ Министерства градостроительной политики Калининградской области от 28.09.2022 № 383
"Об утверждении проекта внесения изменений в документацию по планировке территории, утвержденную постановлением главы города Калининграда – мэра города от 22 мая 2007 года № 1203"
Номер опубликования: 3901202210050004
Дата опубликования: 05.10.2022
Страница №5 из 15:
Увеличить