Официальное опубликование правовых актов
ОФИЦИАЛЬНОЕ ОПУБЛИКОВАНИЕ
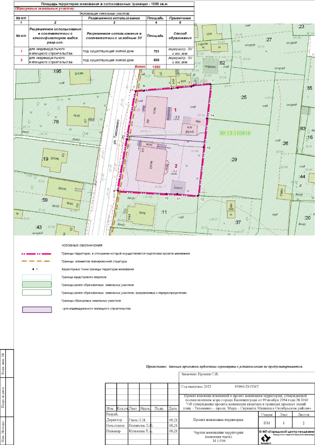
Приказ Министерства градостроительной политики Калининградской области от 26.04.2022 № 130
"Об утверждении проекта внесения изменений в проект межевания территории, утвержденный постановлением мэра города Калининграда от 09 ноября 2004 года № 3060"
Номер опубликования: 3901202204290009
Дата опубликования: 29.04.2022
Страница №4 из 7:
Увеличить