Приказ Агентства по архитектуре, градостроению и перспективному развитию Калининградской области от 15.03.2022 № 136
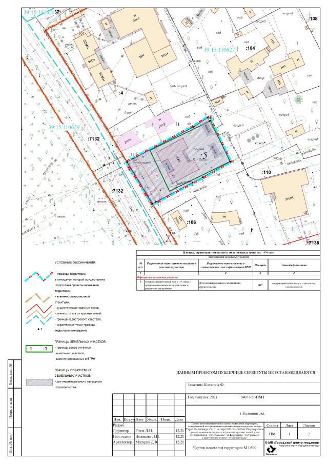
"Об утверждении проекта внесения изменений в проект межевания территории, утвержденный постановлением администрации городского округа "Город Калининград" от 31 октября 2012 года № 2046"
"Об утверждении проекта внесения изменений в проект межевания территории, утвержденный постановлением администрации городского округа "Город Калининград" от 31 октября 2012 года № 2046"
Номер опубликования: 3901202203220003
Дата опубликования:
22.03.2022
