Официальное опубликование правовых актов
ОФИЦИАЛЬНОЕ ОПУБЛИКОВАНИЕ
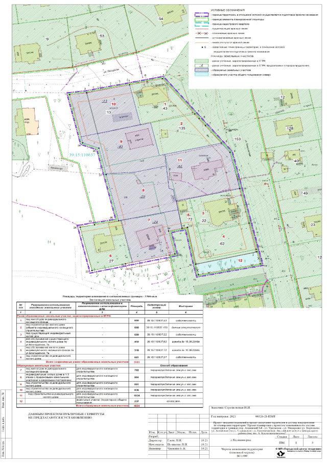
Приказ Агентства по архитектуре, градостроению и перспективному развитию Калининградской области от 09.02.2022 № 79
"Об утверждении проекта внесения изменений в проект межевания территории в составе документации по планировке территории, утвержденной постановлением администрации городского округа "Город Калининград" от 2 октября 2013 года № 1510"
Номер опубликования: 3901202202150003
Дата опубликования: 15.02.2022
Страница №5 из 10:
Увеличить