Официальное опубликование правовых актов
ОФИЦИАЛЬНОЕ ОПУБЛИКОВАНИЕ
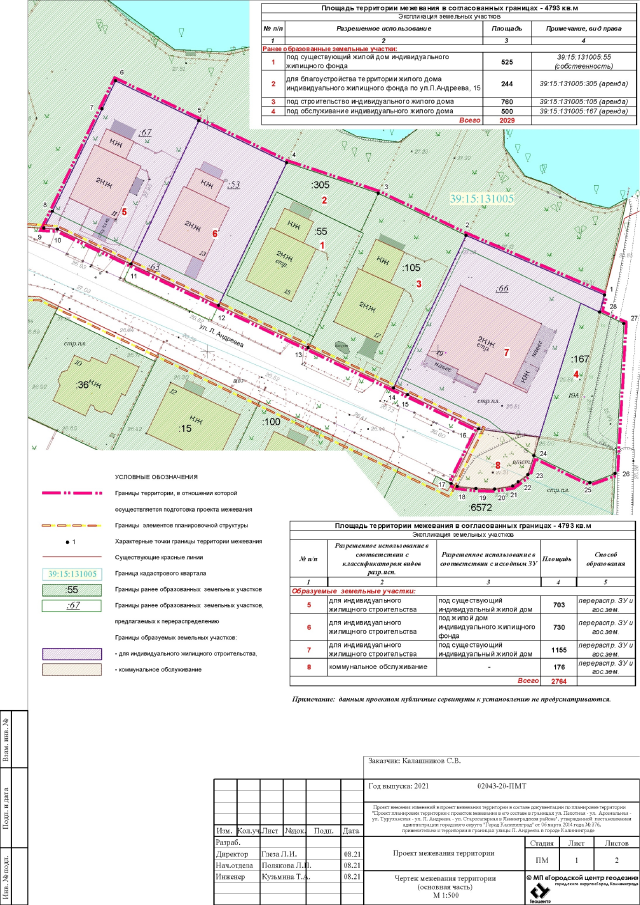
Приказ Агентства по архитектуре, градостроению и перспективному развитию Калининградской области от 23.12.2021 № 566
"Об утверждении проекта внесения изменений в проект межевания территории в составе документации по планировке территории, утвержденной постановлением администрации городского округа "Город Калининград" от 06 марта 2014 года № 376"
Номер опубликования: 3901202112270003
Дата опубликования: 27.12.2021
Страница №5 из 9:
Увеличить