Официальное опубликование правовых актов
ОФИЦИАЛЬНОЕ ОПУБЛИКОВАНИЕ
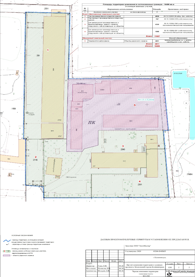
Приказ Агентства по архитектуре, градостроению и перспективному развитию Калининградской области от 06.05.2021 № 175
"Об утверждении проекта межевания территории в границах проспекта Московский в городе Калининграде"
Номер опубликования: 3901202105120007
Дата опубликования: 12.05.2021
Страница №5 из 9:
Увеличить