Приказ Агентства по архитектуре, градостроению и перспективному развитию Калининградской области от 14.04.2021 № 151
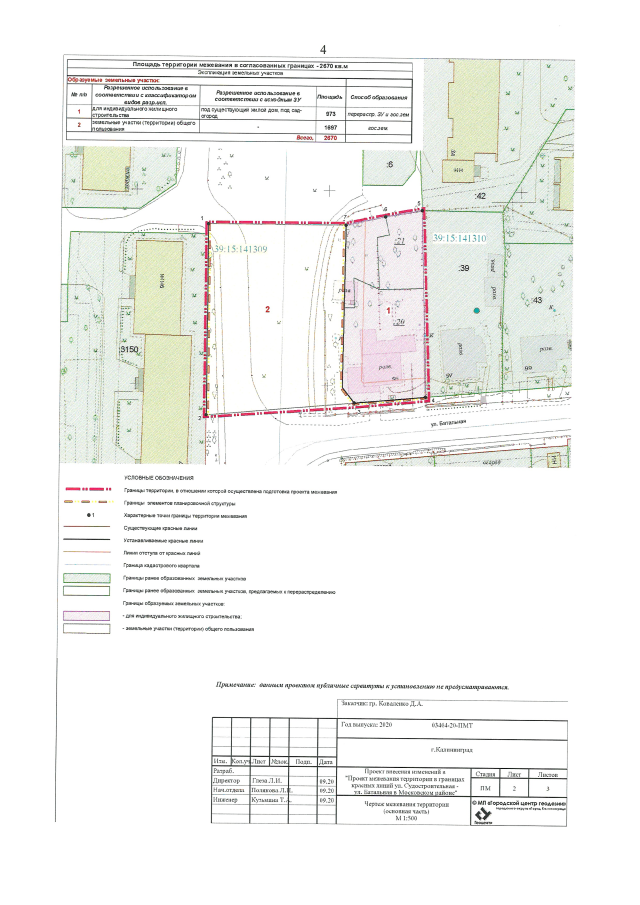
"Об утверждении проекта внесения изменений в проект межевания территории, утвержденный постановлением администрации городского округа "Город Калининград" от 21 мая 2014 года № 723"
"Об утверждении проекта внесения изменений в проект межевания территории, утвержденный постановлением администрации городского округа "Город Калининград" от 21 мая 2014 года № 723"
Номер опубликования: 3901202104220004
Дата опубликования:
22.04.2021
