Официальное опубликование правовых актов
ОФИЦИАЛЬНОЕ ОПУБЛИКОВАНИЕ
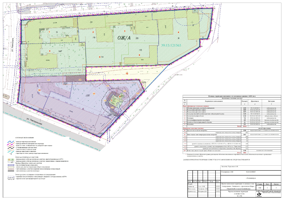
Приказ Агентства по архитектуре, градостроению и перспективному развитию Калининградской области от 07.10.2020 № 417
"Об утверждении проекта межевания территории в границах улиц Театральная – Ушинского – проспектов Мира – Гвардейский в городе Калининграде"
Номер опубликования: 3901202010150016
Дата опубликования: 15.10.2020
Страница №5 из 10:
Увеличить