Официальное опубликование правовых актов
ОФИЦИАЛЬНОЕ ОПУБЛИКОВАНИЕ
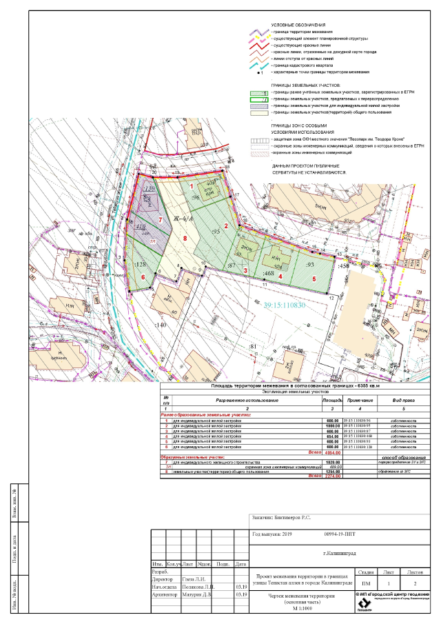
Приказ Агентства по архитектуре, градостроению и перспективному развитию Калининградской области от 25.11.2019 № 432
"Об утверждении проекта межевания территории в границах улицы Тенистая аллея в городе Калининграде"
Номер опубликования: 3901201912020006
Дата опубликования: 02.12.2019
Страница №5 из 9:
Увеличить