Официальное опубликование правовых актов
ОФИЦИАЛЬНОЕ ОПУБЛИКОВАНИЕ
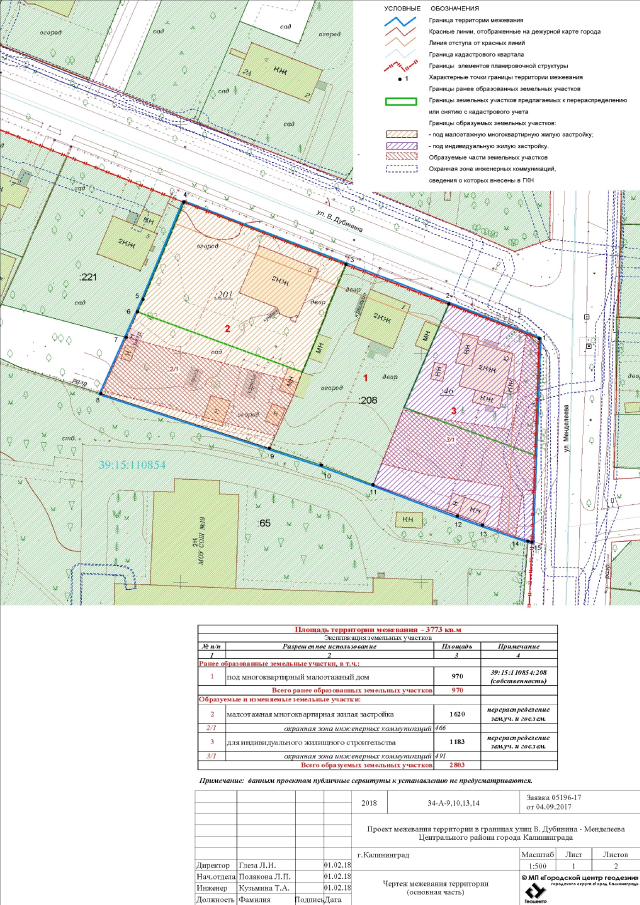
Приказ Агентства по архитектуре, градостроению и перспективному развитию Калининградской области от 13.09.2019 № 320
"Об утверждении проекта межевания территории в границах улиц В. Дубинина – Менделеева Центрального района города Калининграда"
Номер опубликования: 3901201909200006
Дата опубликования: 20.09.2019
Страница №5 из 10:
Увеличить