Официальное опубликование правовых актов
ОФИЦИАЛЬНОЕ ОПУБЛИКОВАНИЕ
Приказ Министерства внутренних дел Российской Федерации от 20.02.2021 № 80
"Об утверждении Административного регламента Министерства внутренних дел Российской Федерации по представлению государственной услуги по проведению экзаменов на право управления транспортными средствами и выдаче водительских удостоверений"
(Зарегистрирован 22.03.2021 № 62837)
Номер опубликования: 0001202103230031
Дата опубликования: 23.03.2021
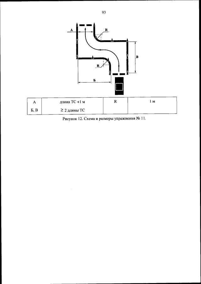
Страница №93 из 106:
Увеличить