Официальное опубликование правовых актов
ОФИЦИАЛЬНОЕ ОПУБЛИКОВАНИЕ
Постановление Правительства Севастополя от 16.03.2026 № 64-ПП
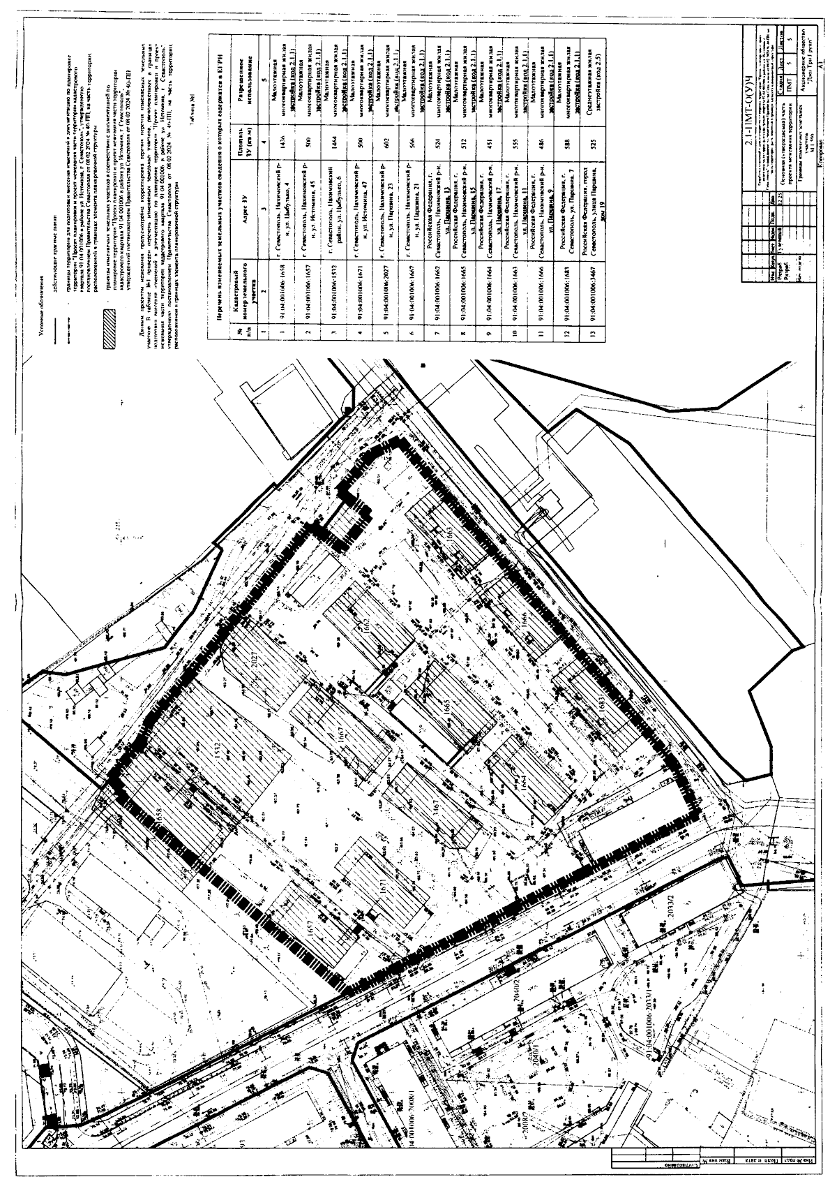
"О внесении изменений в постановление Правительства Севастополя от 08.02.2024 № 40-ПП "Об утверждении документации по планировке территории "Проект планировки и проект межевания части территории кадастрового квартала 91:04:001006 в районе ул. Истомина, г. Севастополь"
Номер опубликования: 9200202603230004
Дата опубликования: 23.03.2026
Страница №75 из 75:
Увеличить