Постановление Правительства Севастополя от 24.10.2025 № 500-ПП
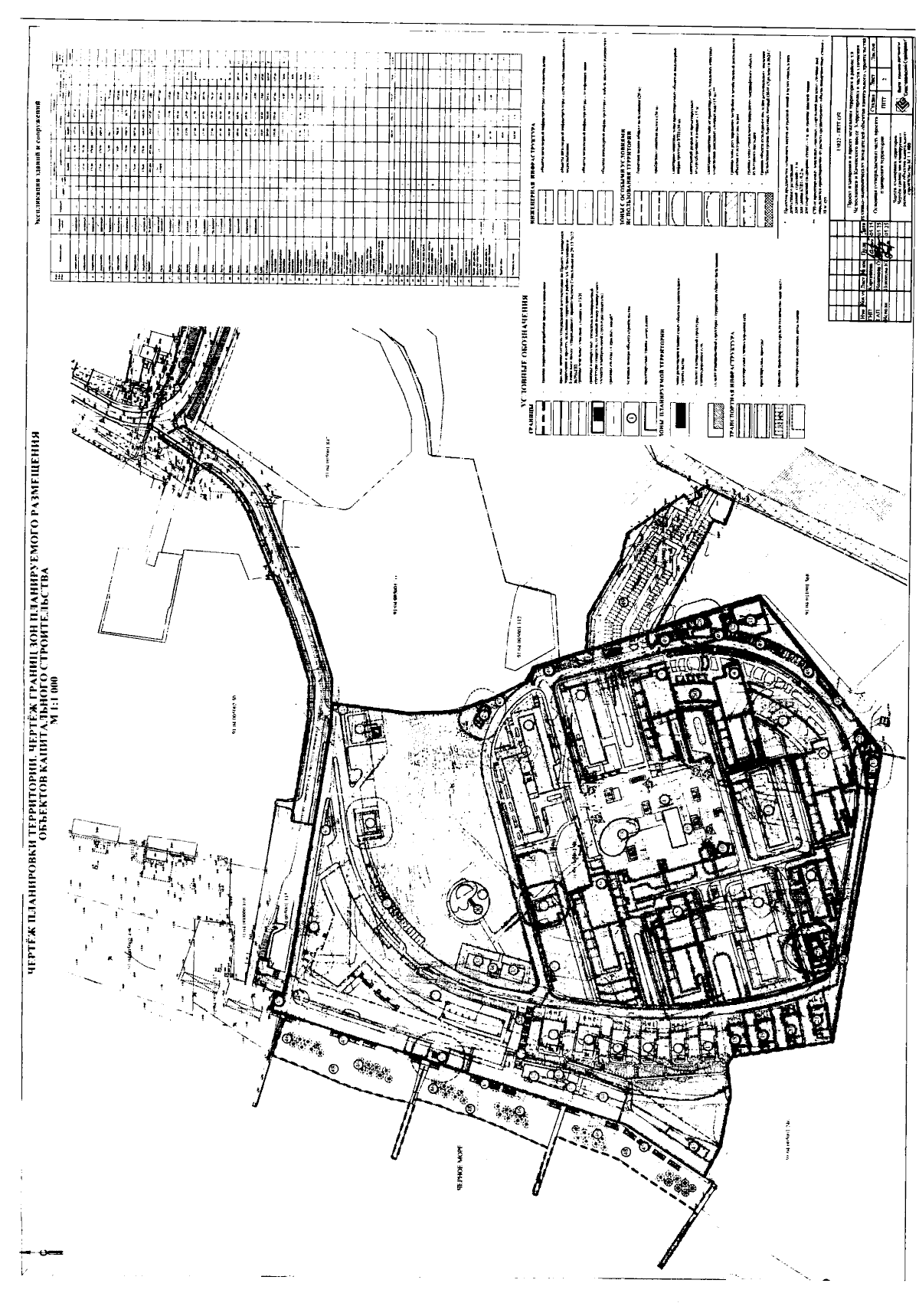
"О внесении изменений в постановление Правительства Севастополя от 29.12.2022 № 750-ПП "Об утверждении документации по планировке территории "Проект планировки и проект межевания территории в районе ул. Челюскинцев и Качинского шоссе"
"О внесении изменений в постановление Правительства Севастополя от 29.12.2022 № 750-ПП "Об утверждении документации по планировке территории "Проект планировки и проект межевания территории в районе ул. Челюскинцев и Качинского шоссе"
Номер опубликования: 9200202511010020
Дата опубликования:
01.11.2025
