Официальное опубликование правовых актов
ОФИЦИАЛЬНОЕ ОПУБЛИКОВАНИЕ
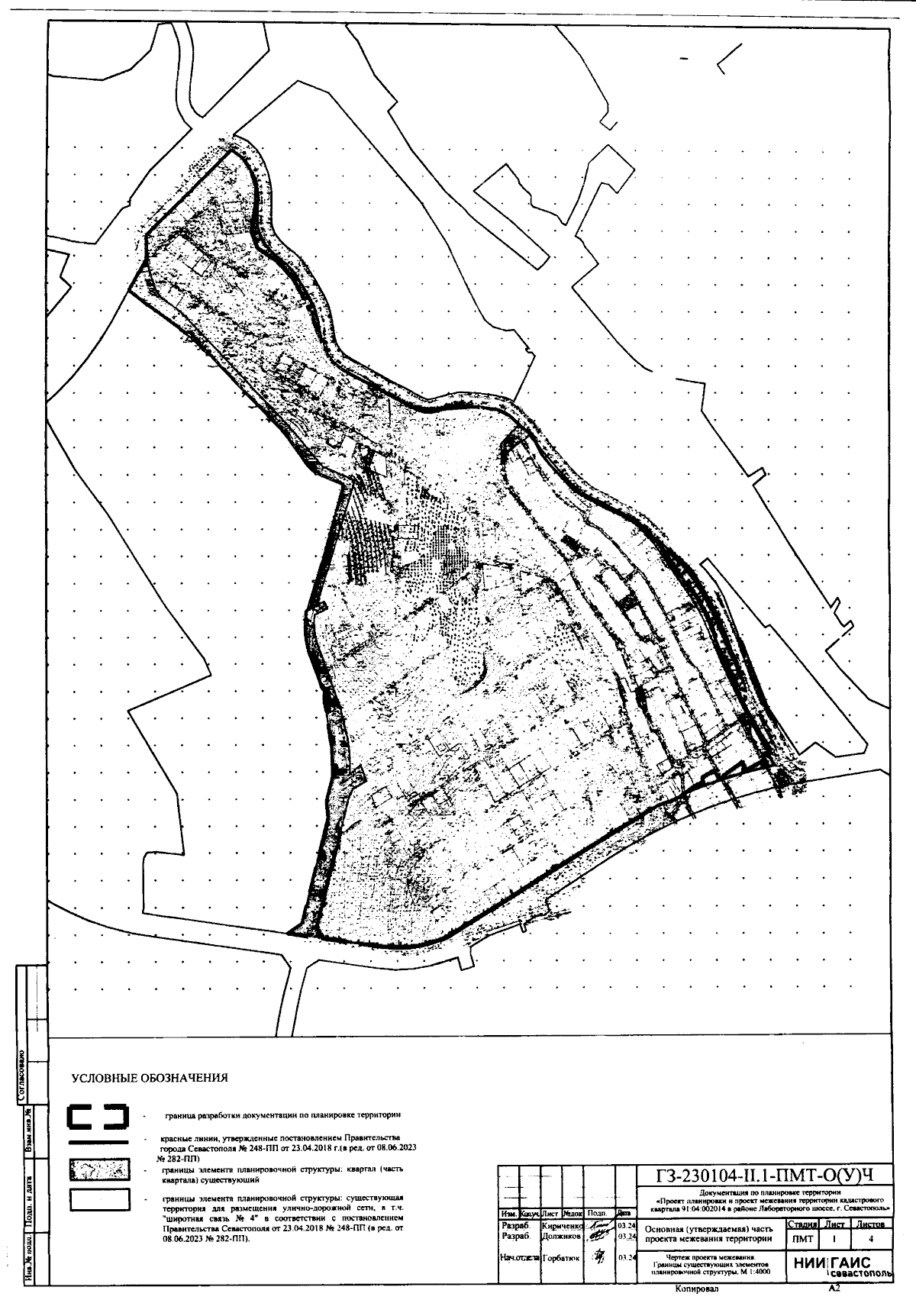
Постановление Правительства Севастополя от 25.10.2024 № 500-ПП
"Об утверждении документации по планировке территории "Проект планировки и проект межевания территории кадастрового квартала 91:04:002014 в районе Лабораторного шоссе, г. Севастополь"
Номер опубликования: 9200202410310009
Дата опубликования: 31.10.2024
Страница №75 из 78:
Увеличить