Официальное опубликование правовых актов
ОФИЦИАЛЬНОЕ ОПУБЛИКОВАНИЕ
Постановление Правительства Севастополя от 29.07.2022 № 321-ПП
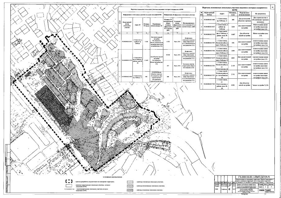
"Об утверждении документации по планировке территории "Проект планировки и проект межевания территории части кадастровых кварталов 91:04:001013, 91:04:001017 в районе пр. Победы, г. Севастополь"
Номер опубликования: 9200202208050014
Дата опубликования: 05.08.2022
Страница №37 из 52:
Увеличить