Официальное опубликование правовых актов
ОФИЦИАЛЬНОЕ ОПУБЛИКОВАНИЕ
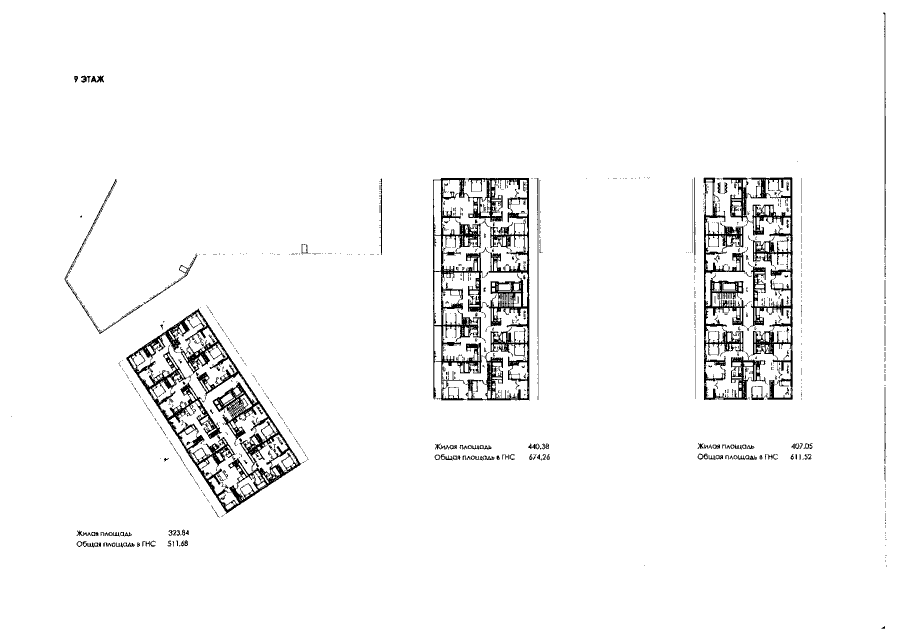
Распоряжение Правительства Севастополя от 05.07.2022 № 110-РП
"О комплексном развитии территории нежилой застройки города Севастополя, расположенной по адресу: г. Севастополь, на перекрестке шоссе Генерала Моргунова и проспекта Генерала Острякова"
Номер опубликования: 9200202207120007
Дата опубликования: 12.07.2022
Страница №27 из 69:
Увеличить