Официальное опубликование правовых актов
ОФИЦИАЛЬНОЕ ОПУБЛИКОВАНИЕ
Постановление Правительства Севастополя от 14.04.2022 № 153-ПП
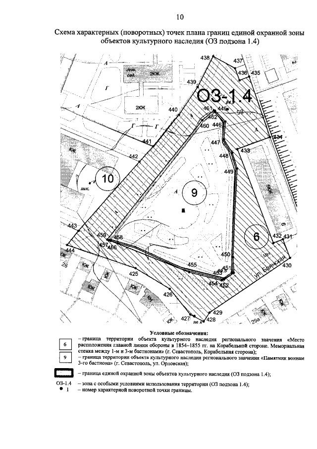
"Об утверждении границ территории объединенной зоны охраны, режимов использования земель и требований к градостроительным регламентам в границах территории объединенной зоны охраны объектов культурного наследия федерального значения "Ансамбль мемориального комплекса памятников обороны города Севастополя в 1854–1855 годах, 1941–1944 годах "Малахов курган", 1904–1905 годы, архитектор А.М. Вейзен, 1944–1980-е годы (г. Севастополь, Малахов курган), регионального значения "Жилой дом" (ул. Героев Севастополя, 27), "Жилой дом" (ул. Героев Севастополя, 58), "Памятник воинам 1-го бастиона" (ул. 1-я Бастионная), "Памятник воинам 2-го бастиона" (ул. 2-я Бастионная), "Памятник воинам 3-го бастиона" (ул. Орловская), "Место расположения главной линии обороны в 1854–1855 гг. на корабельной стороне. Мемориальная стенка между 1-м и 3-м бастионами (Корабельная сторона)"
Номер опубликования: 9200202204210017
Дата опубликования: 21.04.2022
Страница №64 из 73:
Увеличить