Постановление Правительства Севастополя от 22.07.2021 № 333-ПП
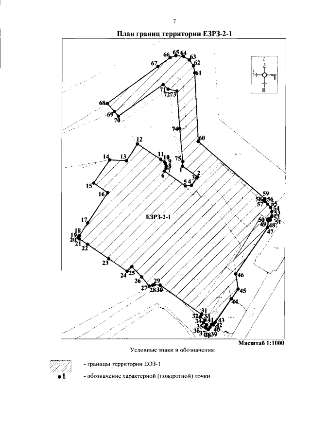
"Об утверждении границ объединенной зоны охраны, режимов использования земель и требований к градостроительным регламентам в границах территории объединенной зоны охраны объектов культурного наследия регионального значения "Обелиск городу-герою Севастополю" (г. Севастополь, мыс Хрустальный), "Скульптурная композиция "Солдат и матрос" (г. Севастополь, Ленинский район, мыс Хрустальный), "Оборонительная стена 7-го бастиона" (г. Севастополь, Крепостной переулок)"
"Об утверждении границ объединенной зоны охраны, режимов использования земель и требований к градостроительным регламентам в границах территории объединенной зоны охраны объектов культурного наследия регионального значения "Обелиск городу-герою Севастополю" (г. Севастополь, мыс Хрустальный), "Скульптурная композиция "Солдат и матрос" (г. Севастополь, Ленинский район, мыс Хрустальный), "Оборонительная стена 7-го бастиона" (г. Севастополь, Крепостной переулок)"
Номер опубликования: 9200202107290028
Дата опубликования:
29.07.2021
