Официальное опубликование правовых актов
ОФИЦИАЛЬНОЕ ОПУБЛИКОВАНИЕ
Постановление Правительства Севастополя от 01.07.2021 № 292-ПП
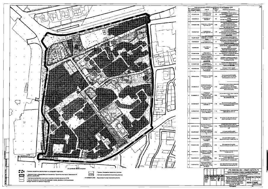
"Об утверждении документации по планировке территории "Проект планировки и проект межевания территории кадастрового квартала 91:02:001010 в районе ул. Шевченко в г. Севастополе"
Номер опубликования: 9200202107080009
Дата опубликования: 08.07.2021
Страница №58 из 58:
Увеличить