Официальное опубликование правовых актов
ОФИЦИАЛЬНОЕ ОПУБЛИКОВАНИЕ
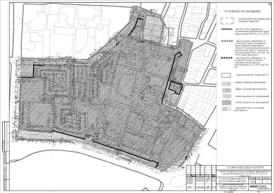
Постановление Правительства Севастополя от 26.03.2021 № 117-ПП
"Об утверждении документации по планировке территории "Проект планировки и проект межевания территории части кадастровых кварталов 91:02:001009, 91:02:001011, г. Севастополь"
Номер опубликования: 9200202104020018
Дата опубликования: 02.04.2021
Страница №55 из 59:
Увеличить