Официальное опубликование правовых актов
ОФИЦИАЛЬНОЕ ОПУБЛИКОВАНИЕ
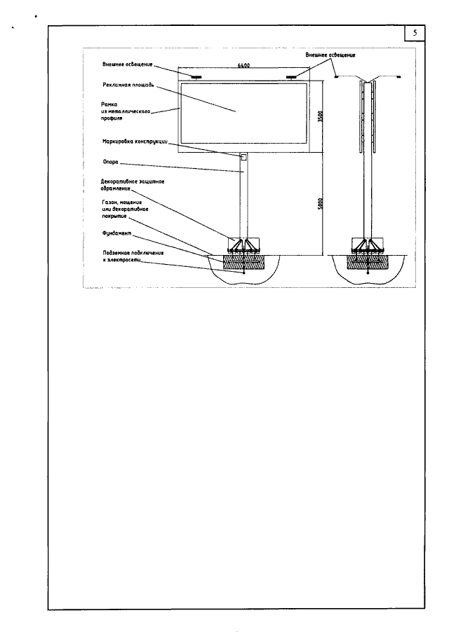
Постановление Правительства Севастополя от 03.07.2020 № 326-ПП
"О внесении изменений в постановление Правительства Севастополя от 14.12.2017 № 936-ПП "Об утверждении Схемы установки (размещения) рекламных конструкций, устанавливаемых (размещаемых) на земельных участках, независимо от форм собственности, а также на зданиях или ином недвижимом имуществе, находящемся в собственности города Севастополя"
Номер опубликования: 9200202007080003
Дата опубликования: 08.07.2020
Страница №17 из 39:
Увеличить