Официальное опубликование правовых актов
ОФИЦИАЛЬНОЕ ОПУБЛИКОВАНИЕ
Постановление Правительства Севастополя от 10.09.2018 № 583-ПП
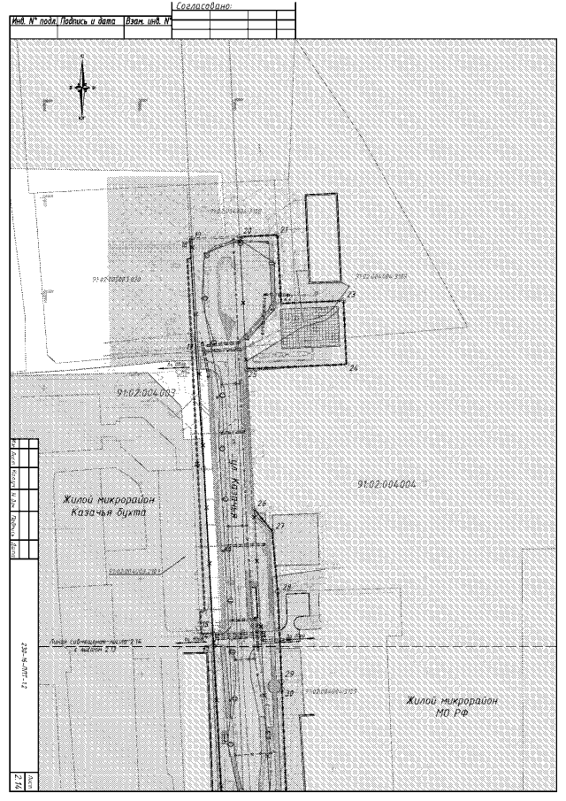
"Об утверждении проекта планировки и проекта межевания территории линейного объекта "Строительство и реконструкция региональной автомобильной дороги "Севастополь – порт Камышовая бухта – бухта Казачья, км 0+000-3+500"
Номер опубликования: 9200201809180019
Дата опубликования: 18.09.2018
Страница №64 из 246:
Увеличить