Официальное опубликование правовых актов
ОФИЦИАЛЬНОЕ ОПУБЛИКОВАНИЕ
Постановление Правительства Севастополя от 12.07.2018 № 438-ПП
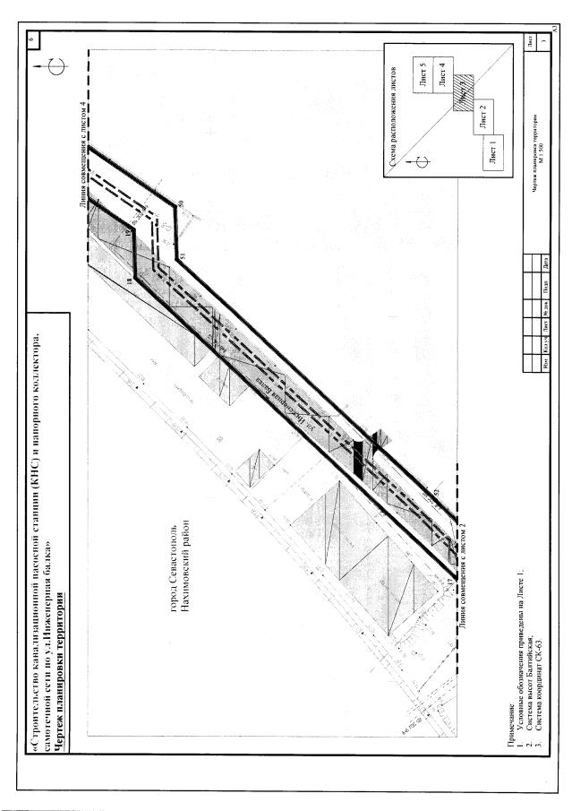
"Об утверждении документации по планировке территории линейного объекта "Строительство канализационной насосной станции (КНС) и напорного коллектора, самотечной сети по ул. Инженерная балка"
Номер опубликования: 9200201807180021
Дата опубликования: 18.07.2018
Страница №26 из 51:
Увеличить