Постановление Правительства Севастополя от 12.07.2018 № 440-ПП
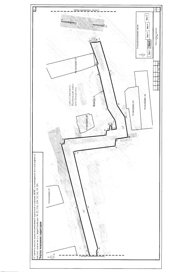
"Об утверждении документации по планировке территории линейного объекта "Строительство канализационной насосной станции (КНС) и напорных коллекторов от жилых домов по ул. Заря Свободы 32, 33а, 33б, 33, 34, 35, 39"
"Об утверждении документации по планировке территории линейного объекта "Строительство канализационной насосной станции (КНС) и напорных коллекторов от жилых домов по ул. Заря Свободы 32, 33а, 33б, 33, 34, 35, 39"
Номер опубликования: 9200201807180014
Дата опубликования:
18.07.2018
