Приказ Министерства культуры Республики Крым от 11.11.2025 № 702-ОКН
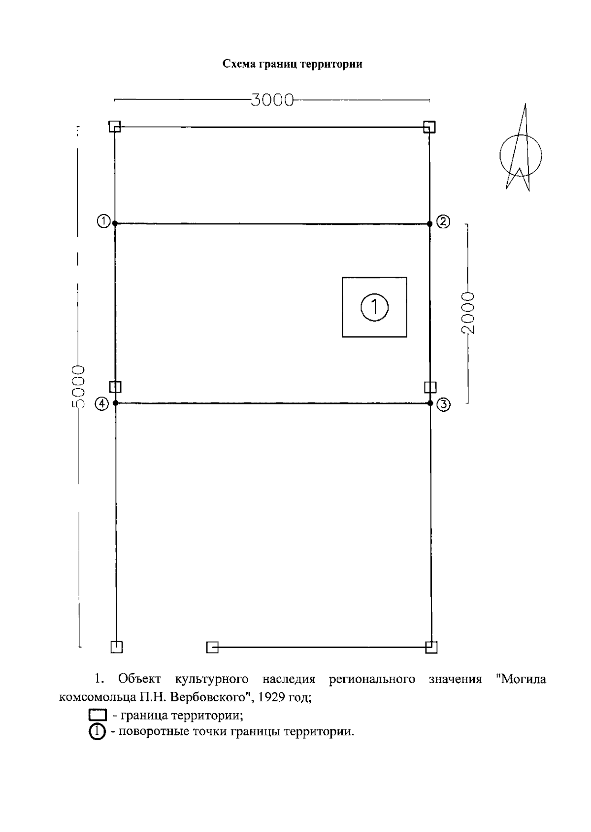
"Об утверждении границ территории, режимов использования земель в границах территории объекта культурного наследия регионального значения "Могила комсомольца П.Н. Вербовского", 1929 год, расположенного по адресу: Республика Крым, Белогорский район, сельское поселение Зуйское, пгт Зуя, поселковое кладбище"
(Зарегистрирован 18.11.2025 № 2945)
"Об утверждении границ территории, режимов использования земель в границах территории объекта культурного наследия регионального значения "Могила комсомольца П.Н. Вербовского", 1929 год, расположенного по адресу: Республика Крым, Белогорский район, сельское поселение Зуйское, пгт Зуя, поселковое кладбище"
(Зарегистрирован 18.11.2025 № 2945)
Номер опубликования: 9101202511200014
Дата опубликования:
20.11.2025
