Приказ Министерства культуры Республики Крым от 01.10.2025 № 610-ОКН
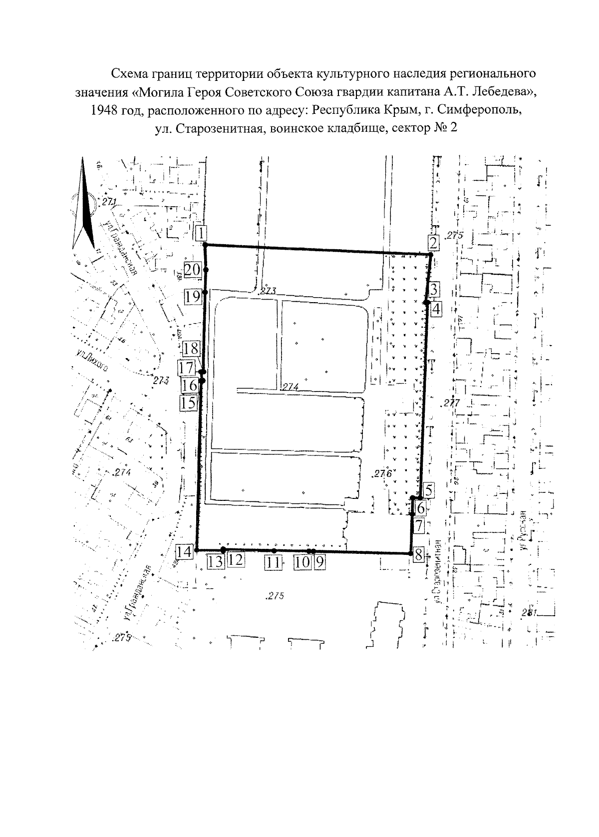
"О включении выявленного объекта культурного наследия "Могила Героя Советского Союза гвардии капитана Лебедева Анатолия Тимофеевича", расположенного по адресу: Республика Крым, г. Симферополь, ул. Старозенитная, воинское кладбище, сектор № 2, в единый государственный реестр объектов культурного наследия (памятников истории и культуры) народов Российской Федерации в качестве объекта культурного наследия регионального значения и утверждении границ территории, режимов использования земель в границах территории объекта культурного наследия регионального значения"
(Зарегистрирован 07.10.2025 № 2806)
"О включении выявленного объекта культурного наследия "Могила Героя Советского Союза гвардии капитана Лебедева Анатолия Тимофеевича", расположенного по адресу: Республика Крым, г. Симферополь, ул. Старозенитная, воинское кладбище, сектор № 2, в единый государственный реестр объектов культурного наследия (памятников истории и культуры) народов Российской Федерации в качестве объекта культурного наследия регионального значения и утверждении границ территории, режимов использования земель в границах территории объекта культурного наследия регионального значения"
(Зарегистрирован 07.10.2025 № 2806)
Номер опубликования: 9101202510080010
Дата опубликования:
08.10.2025
