Приказ Министерства культуры Республики Крым от 04.07.2025 № 374-ОКН
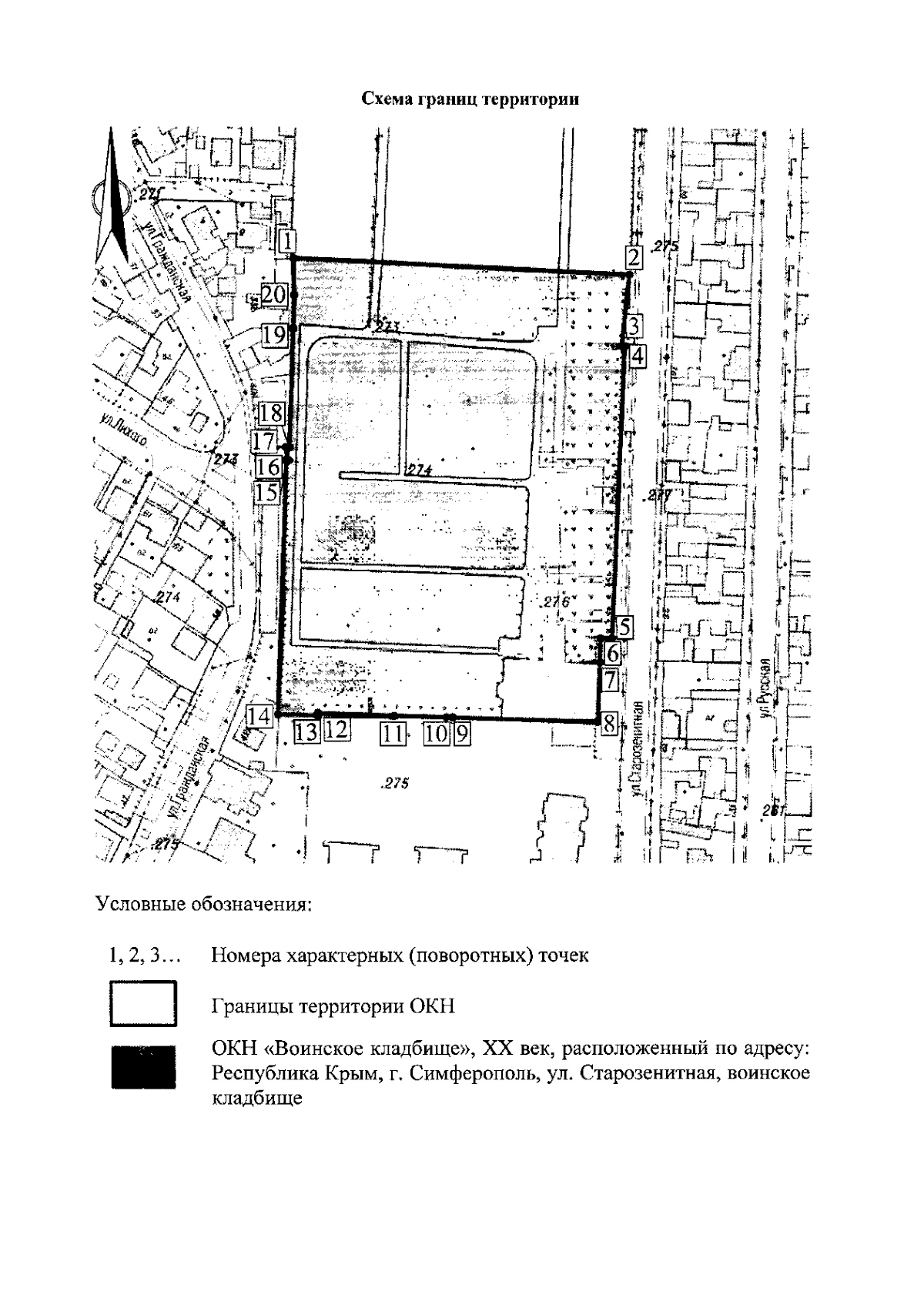
"Об утверждении границ территории, режимов использования земель в границах территории объекта культурного наследия регионального значения "Воинское кладбище", XX век, расположенного по адресу: Республика Крым, г. Симферополь, ул. Старозенитная, воинское кладбище"
(Зарегистрирован 08.07.2025 № 2542)
"Об утверждении границ территории, режимов использования земель в границах территории объекта культурного наследия регионального значения "Воинское кладбище", XX век, расположенного по адресу: Республика Крым, г. Симферополь, ул. Старозенитная, воинское кладбище"
(Зарегистрирован 08.07.2025 № 2542)
Номер опубликования: 9101202507100002
Дата опубликования:
10.07.2025
