Официальное опубликование правовых актов
ОФИЦИАЛЬНОЕ ОПУБЛИКОВАНИЕ
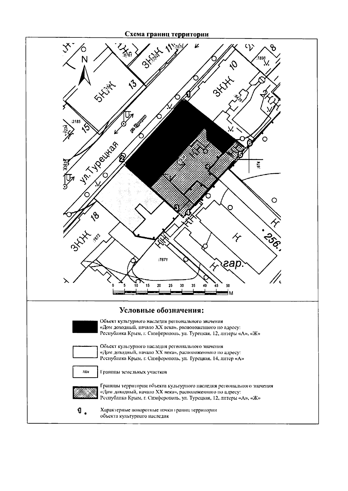
Приказ Министерства культуры Республики Крым от 05.06.2025 № 320-ОКН
"Об утверждении границ территории, режимов использования земель в границах территории объекта культурного наследия регионального значения "Дом доходный", начало XX века, расположенного по адресу: Республика Крым, г. Симферополь, ул. Турецкая, 12, литеры "А", "Ж"
(Зарегистрирован 18.06.2025 № 2489)
Номер опубликования: 9101202506190014
Дата опубликования: 19.06.2025
Страница №4 из 6:
Увеличить