Официальное опубликование правовых актов
ОФИЦИАЛЬНОЕ ОПУБЛИКОВАНИЕ
Приказ Министерства культуры Республики Крым от 17.01.2025 № 18-ОКН
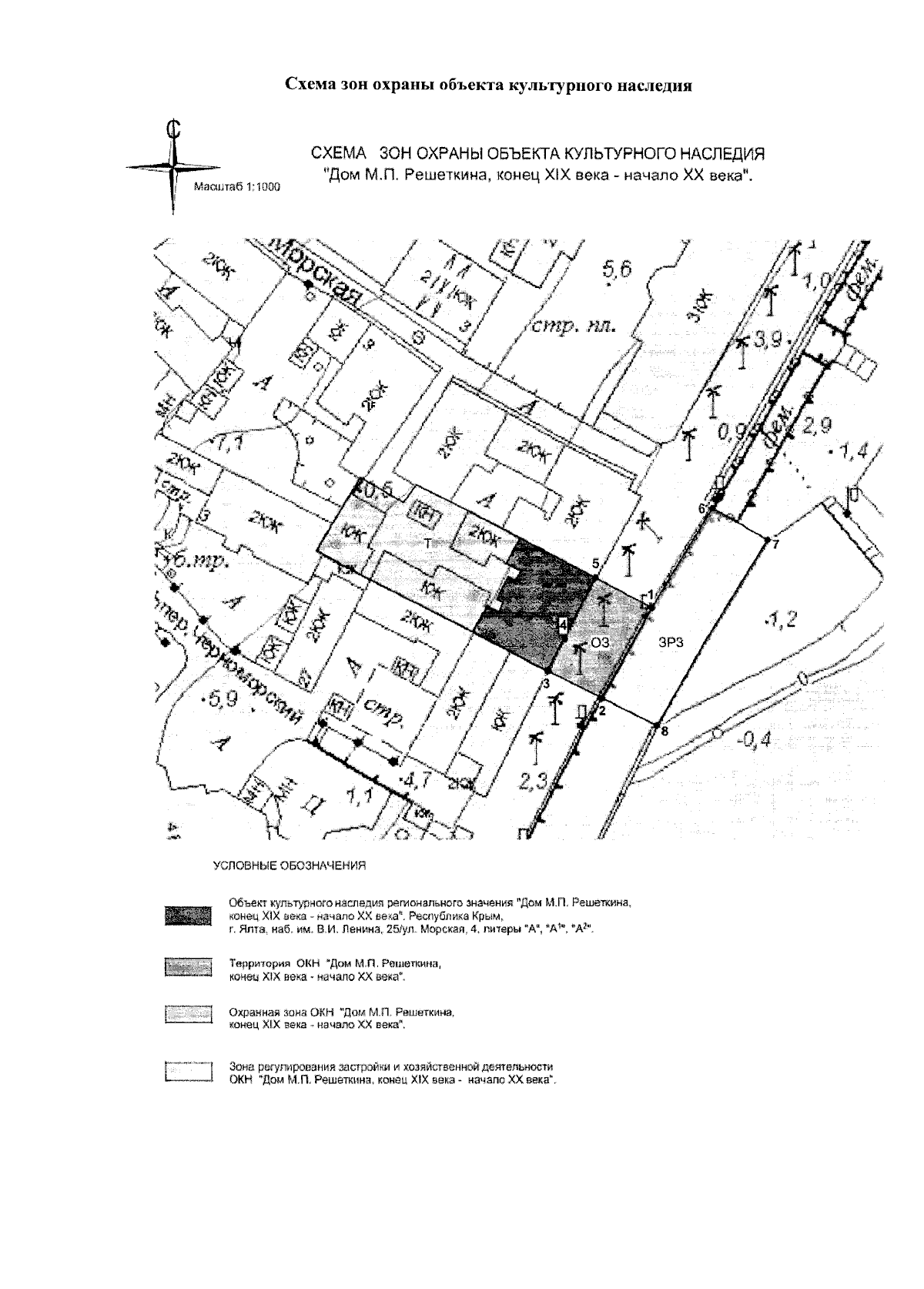
"Об утверждении границ зон охраны, режимов использования земель и требований к градостроительным регламентам в границах зон охраны объекта культурного наследия регионального значения "Дом М.П. Решеткина", конец XIX века - начало XX века, расположенного по адресу: Республика Крым, г. Ялта, наб. им. В.И. Ленина, 25/ул. Морская, 4, литеры "А", "А1", "А2"
(Зарегистрирован 20.01.2025 № 2129)
Номер опубликования: 9101202501210010
Дата опубликования: 21.01.2025
Страница №5 из 8:
Увеличить