Официальное опубликование правовых актов
ОФИЦИАЛЬНОЕ ОПУБЛИКОВАНИЕ
Приказ Министерства культуры Республики Крым от 17.10.2024 № 577-ОКН
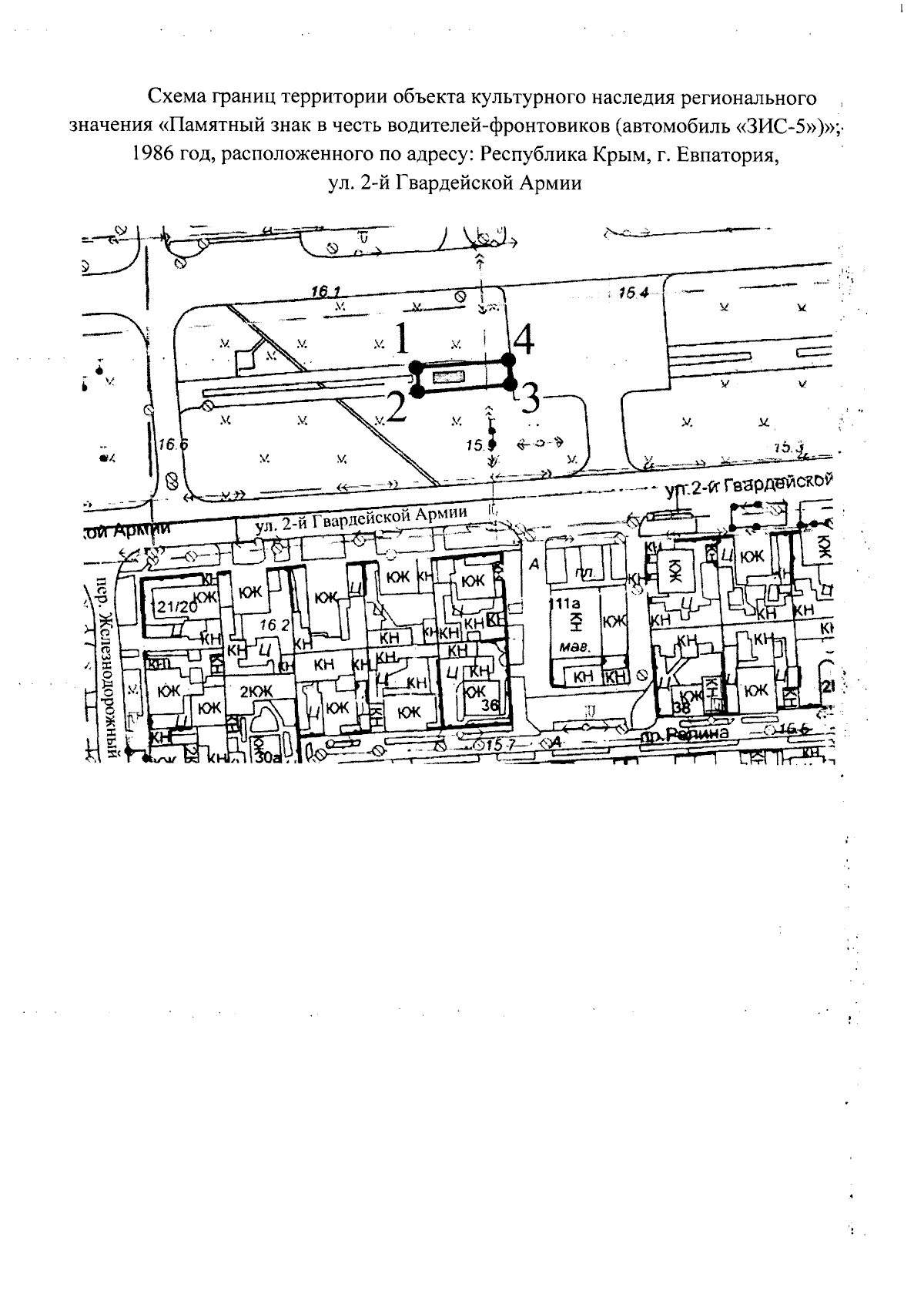
"О включении выявленного объекта культурного наследия "Памятный знак в честь водителей-фронтовиков (автомобиль "ЗИС-5")", 1986 год, расположенного по адресу: Республика Крым, г. Евпатория, ул. 2-й Гвардейской Армии, в единый государственный реестр объектов культурного наследия (памятников истории и культуры) народов Российской Федерации в качестве объекта культурного наследия регионального значения и утверждении границ территории, режимов использования земель в границах территории объекта культурного наследия регионального значения"
(Зарегистрирован 21.10.2024 № 1767)
Номер опубликования: 9101202410240008
Дата опубликования: 24.10.2024
Страница №5 из 7:
Увеличить