Приказ Министерства культуры Республики Крым от 01.10.2024 № 500-ОКН
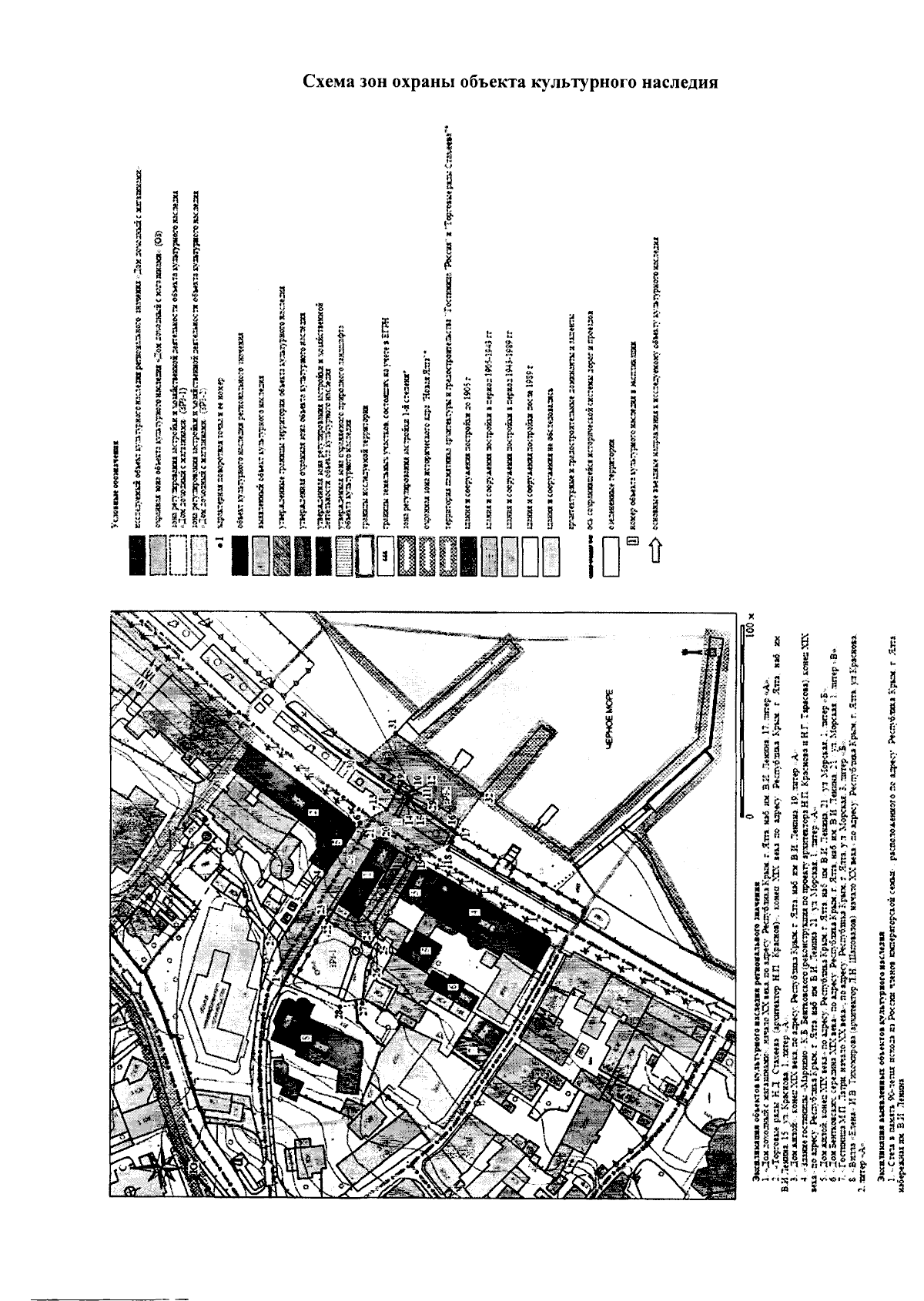
"Об утверждении границ зон охраны, режимов использования земель и требований к градостроительным регламентам в границах зон охраны объекта культурного наследия регионального значения "Дом доходный с магазинами", начало XX века, расположенного по адресу: Республика Крым, г. Ялта, наб. им. В.И. Ленина, 17, литер "А"
(Зарегистрирован 02.10.2024 № 1718)
"Об утверждении границ зон охраны, режимов использования земель и требований к градостроительным регламентам в границах зон охраны объекта культурного наследия регионального значения "Дом доходный с магазинами", начало XX века, расположенного по адресу: Республика Крым, г. Ялта, наб. им. В.И. Ленина, 17, литер "А"
(Зарегистрирован 02.10.2024 № 1718)
Номер опубликования: 9101202410070011
Дата опубликования:
07.10.2024
