Приказ Министерства культуры Республики Крым от 06.08.2024 № 379-ОКН
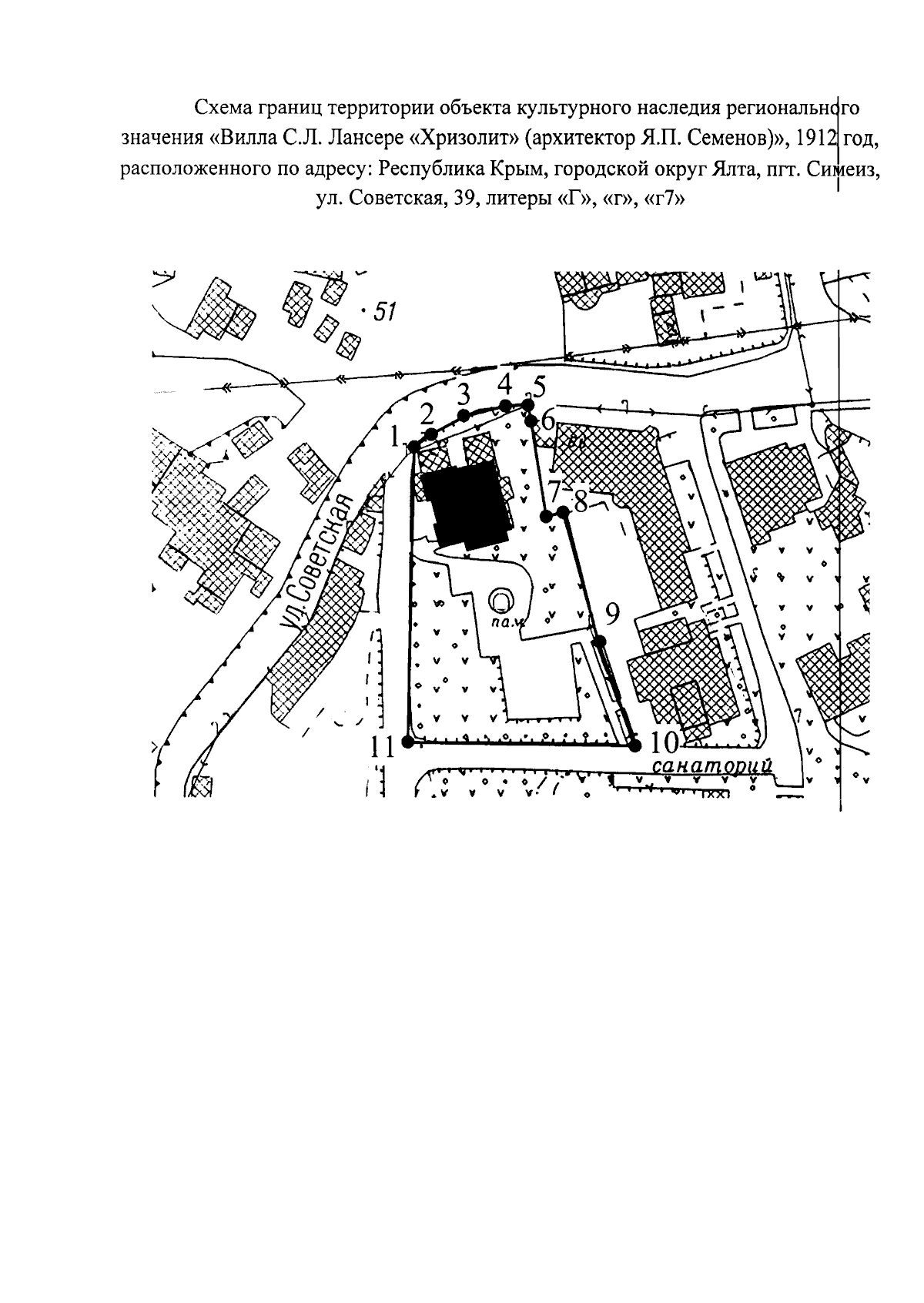
"О включении выявленного объекта культурного наследия "Вилла Лансере "Хризолит", расположенного по адресу: Республика Крым, пгт. Симеиз, ул. Советская, 39, в единый государственный реестр объектов культурного наследия (памятников истории и культуры) народов Российской Федерации в качестве объекта культурного наследия регионального значения и утверждении границ территории, режимов использования земель в границах территории объекта культурного наследия регионального значения"
(Зарегистрирован 28.08.2024 № 1633)
"О включении выявленного объекта культурного наследия "Вилла Лансере "Хризолит", расположенного по адресу: Республика Крым, пгт. Симеиз, ул. Советская, 39, в единый государственный реестр объектов культурного наследия (памятников истории и культуры) народов Российской Федерации в качестве объекта культурного наследия регионального значения и утверждении границ территории, режимов использования земель в границах территории объекта культурного наследия регионального значения"
(Зарегистрирован 28.08.2024 № 1633)
Номер опубликования: 9101202408300001
Дата опубликования:
30.08.2024
