Официальное опубликование правовых актов
ОФИЦИАЛЬНОЕ ОПУБЛИКОВАНИЕ
Приказ Министерства культуры Республики Крым от 24.10.2022 № 631-окн
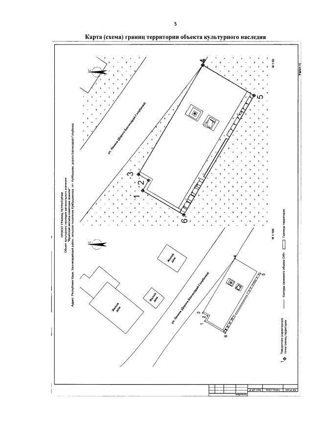
"Об утверждении границ территории и режимов использования земель в границах территории объекта культурного наследия регионального значения "Братская могила советских воинов, 1944 год", расположенногопо адресу: Республика Крым, Бахчисарайский район, сельское поселение Куйбышевское, пгт Куйбышево, дорога Бахчисарай - Голубинка"
Номер опубликования: 9101202210310012
Дата опубликования: 31.10.2022
Страница №5 из 7:
Увеличить