Приказ Министерства культуры Республики Крым от 24.10.2022 № 626-окн
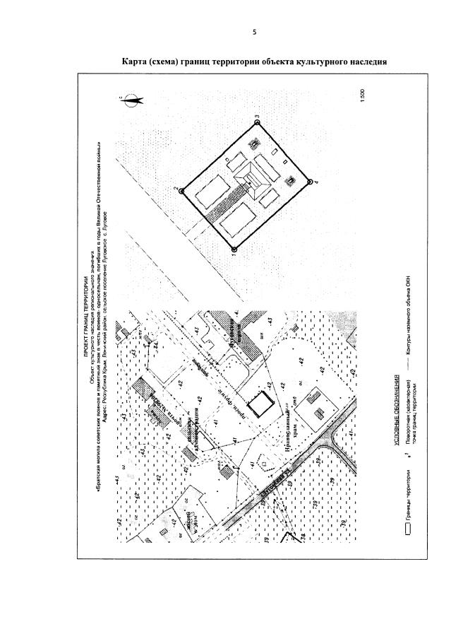
"Об утверждении границ территории и режимов использования земель в границах территории объекта культурного наследия регионального значения "Братская могила советских воинов и памятный знак в честь воинов-односельчан, погибших в годы Великой Отечественной войны, 1941 - 1945 годы, 1967 год", расположенного по адресу: Республика Крым, Ленинский район, сельское поселение Луговское, с. Луговое"
"Об утверждении границ территории и режимов использования земель в границах территории объекта культурного наследия регионального значения "Братская могила советских воинов и памятный знак в честь воинов-односельчан, погибших в годы Великой Отечественной войны, 1941 - 1945 годы, 1967 год", расположенного по адресу: Республика Крым, Ленинский район, сельское поселение Луговское, с. Луговое"
Номер опубликования: 9101202210310005
Дата опубликования:
31.10.2022
