Официальное опубликование правовых актов
ОФИЦИАЛЬНОЕ ОПУБЛИКОВАНИЕ
Приказ Министерства культуры Республики Крым от 17.05.2022 № 265-окн
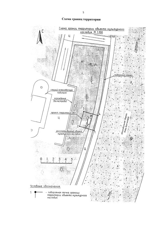
"Об утверждении границ территории, режимов использования земель в границах территории объекта культурного наследия регионального значения "Памятный знак на месте боев партизан Севастопольского отряда, 1966 год", расположенного по адресу: Республика Крым, Бахчисарайский район, сельское поселение Голубинское, 42-й км шоссе Ялта - Бахчисарай"
Номер опубликования: 9101202205200007
Дата опубликования: 20.05.2022
Страница №4 из 5:
Увеличить