Приказ Министерства культуры Республики Крым от 28.04.2022 № 220-окн
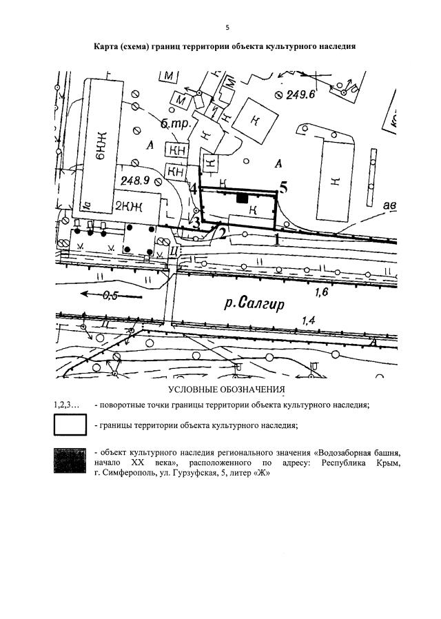
"Об утверждении границ территории и режимов использования земель в границах территории объекта культурного наследия регионального значения "Водозаборная башня, начало XX века", расположенного по адресу: Республика Крым, г. Симферополь, ул. Гурзуфская, 5, литер "Ж"
"Об утверждении границ территории и режимов использования земель в границах территории объекта культурного наследия регионального значения "Водозаборная башня, начало XX века", расположенного по адресу: Республика Крым, г. Симферополь, ул. Гурзуфская, 5, литер "Ж"
Номер опубликования: 9101202204290012
Дата опубликования:
29.04.2022
