Официальное опубликование правовых актов
ОФИЦИАЛЬНОЕ ОПУБЛИКОВАНИЕ
Приказ Министерства культуры Республики Крым от 26.01.2022 № 15-окн
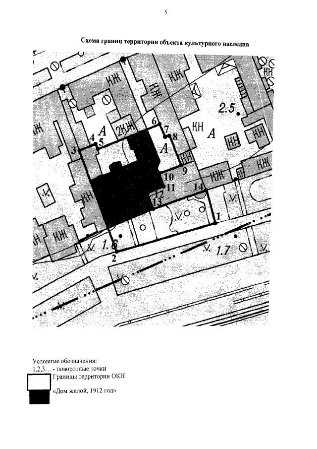
"Об утверждении границ территории и режимов использования земель в границах территории объекта культурного наследия регионального значения "Дом жилой, 1912 года", расположенного по адресу: Республика Крым, г. Евпатория, ул. Революции, 33/ наб. Терешковой, 20, литер "А"
Номер опубликования: 9101202201310001
Дата опубликования: 31.01.2022
Страница №5 из 6:
Увеличить