Приказ Министерства культуры Республики Крым от 14.12.2021 № 589-окн
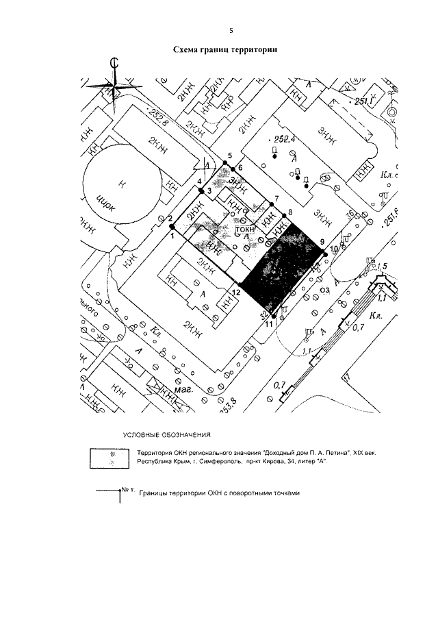
"Об утверждении границ территории, режимов использования земель в границах территории объекта культурного наследия регионального значения "Доходный дом П.А. Петина, XIX век", расположенного по адресу: Республика Крым, г. Симферополь, пр-кт Кирова, 34, литер "А"
"Об утверждении границ территории, режимов использования земель в границах территории объекта культурного наследия регионального значения "Доходный дом П.А. Петина, XIX век", расположенного по адресу: Республика Крым, г. Симферополь, пр-кт Кирова, 34, литер "А"
Номер опубликования: 9101202112230031
Дата опубликования:
23.12.2021
