Приказ Министерства культуры Республики Крым от 28.05.2021 № 147-окн
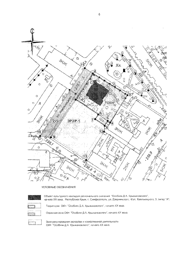
"Об утверждении границ зон охраны, режимов использования земель и требований к градостроительным регламентам в границах зон охраны объекта культурного наследия федерального значения "Особняк Д.А. Крыжановского начало XX века", расположенного по адресу: Республика Крым, г. Симферополь, ул. Дзержинского, 4/ ул. Хмельницкого, 3, литер "А"
"Об утверждении границ зон охраны, режимов использования земель и требований к градостроительным регламентам в границах зон охраны объекта культурного наследия федерального значения "Особняк Д.А. Крыжановского начало XX века", расположенного по адресу: Республика Крым, г. Симферополь, ул. Дзержинского, 4/ ул. Хмельницкого, 3, литер "А"
Номер опубликования: 9101202106020006
Дата опубликования:
02.06.2021
