Официальное опубликование правовых актов
ОФИЦИАЛЬНОЕ ОПУБЛИКОВАНИЕ
Постановление Правительства Чукотского автономного округа от 26.01.2026 № 4
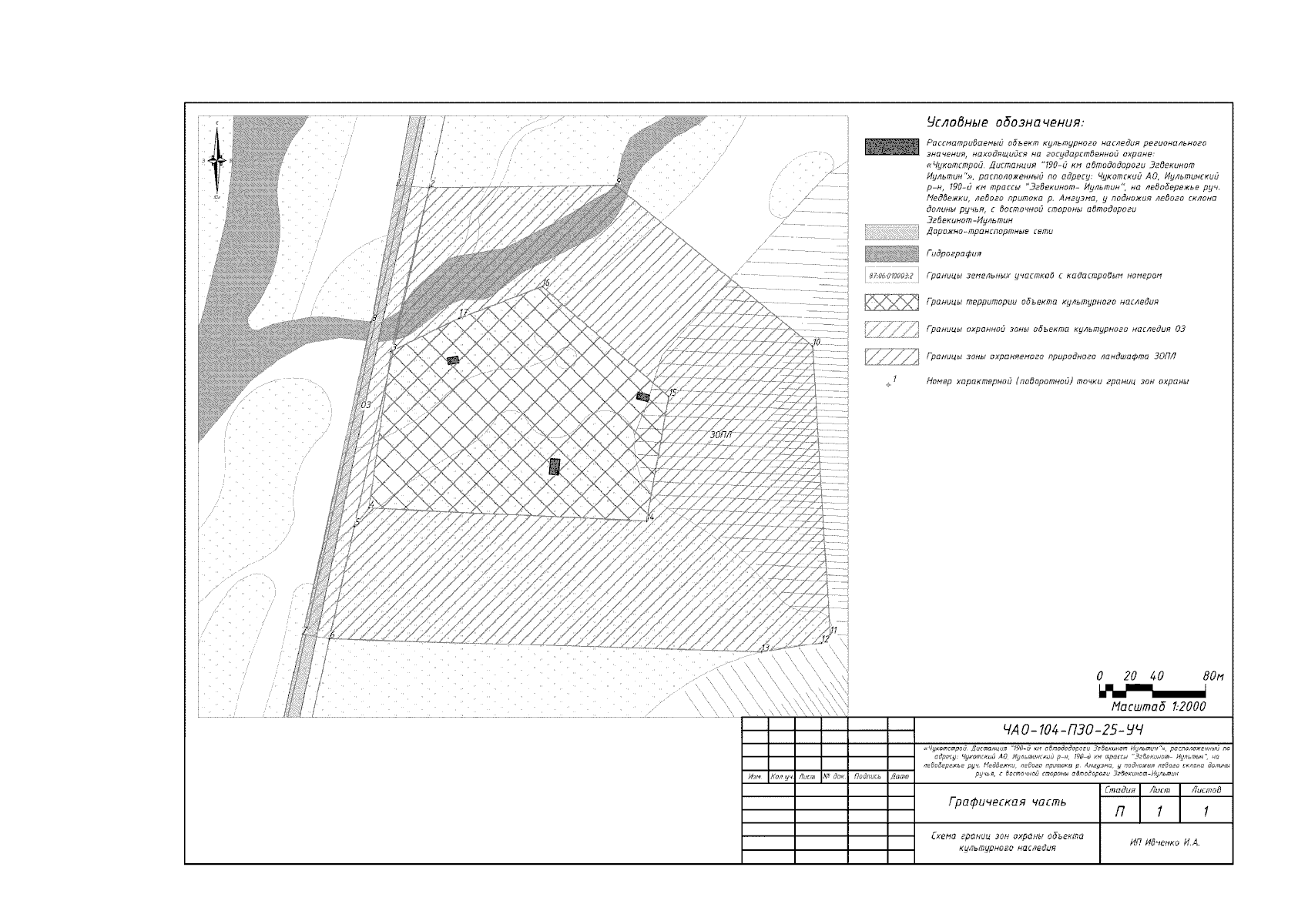
"Об утверждении зоны охраны объекта культурного наследия регионального значения "Чукотстрой. Дистанция "190-й км автодороги Эгвекинот - Иультин", расположенный по адресу: Чукотский автономный округ, Иультинский район, 190-й км трассы Эгвекинот - Иультин, на левобережье ручья Медвежки, левого притока реки Амгуэма, у подножия левого склона долины ручья, с восточной стороны автодороги Эгвекинот - Иультин"
Номер опубликования: 8700202601260007
Дата опубликования: 26.01.2026
Страница №9 из 9:
Увеличить