Официальное опубликование правовых актов
ОФИЦИАЛЬНОЕ ОПУБЛИКОВАНИЕ
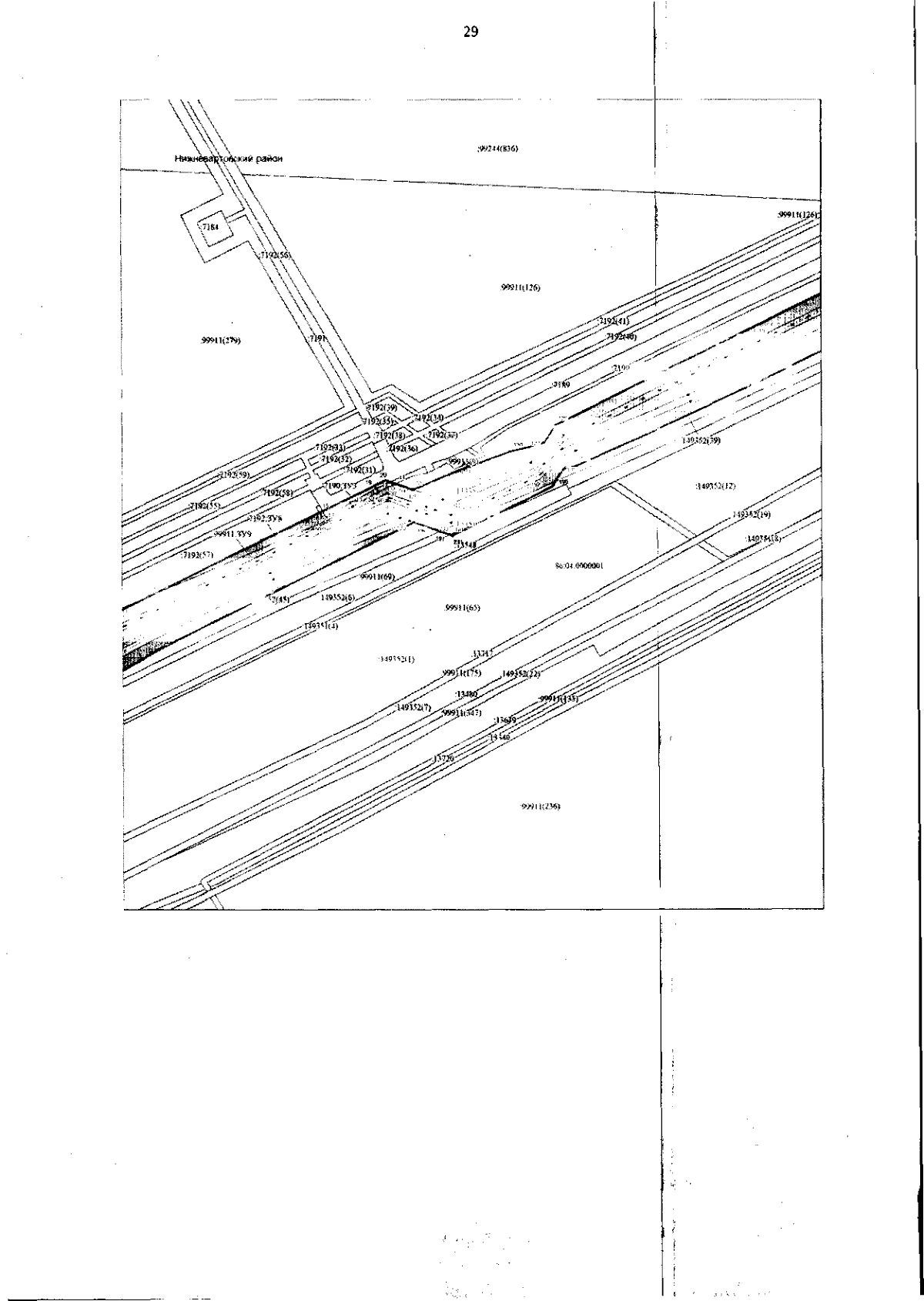
Приказ Департамента пространственного развития и архитектуры Ханты-Мансийского автономного округа - Югры от 12.08.2024 № 40-нп
"О внесении изменений в приказ Департамента пространственного развития и архитектуры Ханты-Мансийского автономного округа – Югры от 12 мая 2023 года № 18-нп "Об утверждении документации по планировке территории"
(Зарегистрирован 14.08.2024 № 7660)
Номер опубликования: 8601202408160001
Дата опубликования: 16.08.2024
Страница №29 из 264:
Увеличить