Официальное опубликование правовых актов
ОФИЦИАЛЬНОЕ ОПУБЛИКОВАНИЕ
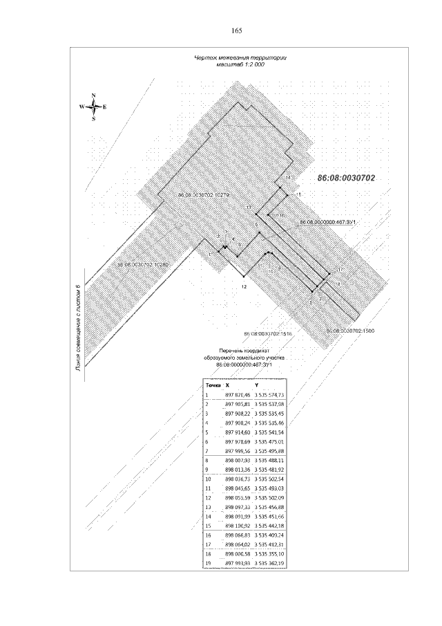
Приказ Департамента строительства Ханты-Мансийского автономного округа – Югры от 12.04.2019 № 7-нп
"Об утверждении документации по планировке территории и внесении изменений в приказ Департамента строительства Ханты-Мансийского автономного округа — Югры от 8 ноября 2018 года № 23-нп "Об утверждении документации по планировке территории"
(Зарегистрирован 17.04.2019 № 4383)
Номер опубликования: 8601201904230001
Дата опубликования: 23.04.2019
Страница №165 из 240:
Увеличить