Официальное опубликование правовых актов
ОФИЦИАЛЬНОЕ ОПУБЛИКОВАНИЕ
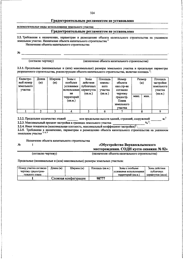
Постановление Правительства Ханты-Мансийского автономного округа - Югры от 10.03.2017 № 81-п
"Об утверждении документации по планировке территории для размещения линейных объектов регионального значения Ханты-Мансийского автономного округа - Югры и о внесении изменений в некоторые постановления Правительства Ханты-Мансийского автономного округа - Югры"
Номер опубликования: 8600201703140010
Дата опубликования: 14.03.2017
Страница №324 из 1043:
Увеличить