Официальное опубликование правовых актов
ОФИЦИАЛЬНОЕ ОПУБЛИКОВАНИЕ
Постановление Правительства Ханты-Мансийского автономного округа - Югры от 22.12.2016 № 546-п
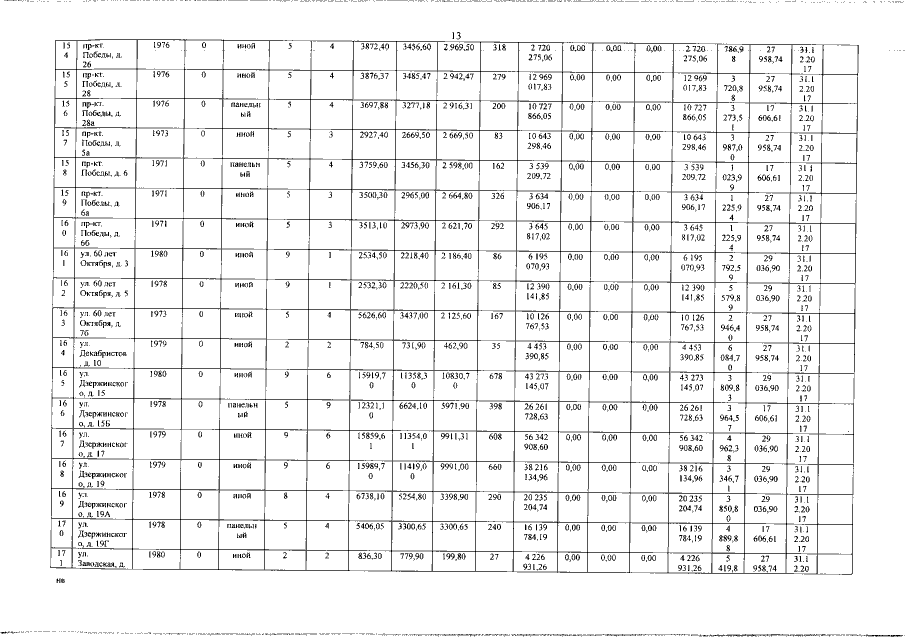
"О внесении изменения в приложение к постановлению Правительства Ханты-Мансийского автономного округа – Югры от 2 сентября 2016 года № 334-п "О краткосрочном плане реализации программы капитального ремонта общего имущества в многоквартирных домах, расположенных на территории Ханты-Мансийского автономного округа – Югры , на 2017 - 2019 годы"
Номер опубликования: 8600201612290002
Дата опубликования: 29.12.2016
Страница №13 из 168:
Увеличить