Официальное опубликование правовых актов
ОФИЦИАЛЬНОЕ ОПУБЛИКОВАНИЕ
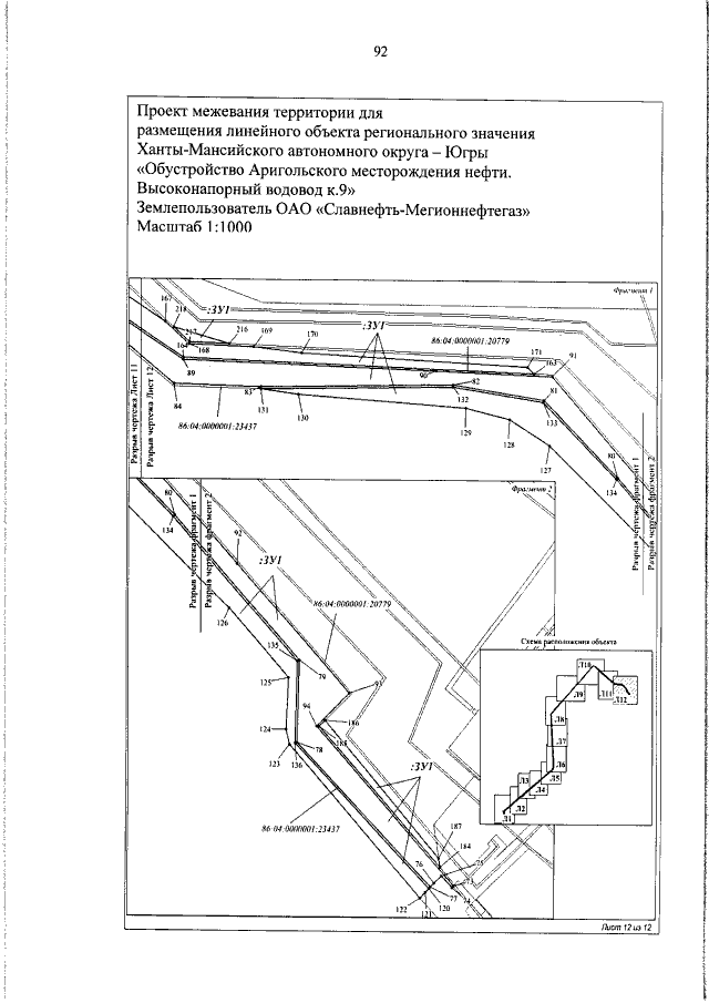
Постановление Правительства Ханты-Мансийского автономного округа - Югры от 08.12.2016 № 482-п
"Об утверждении документации по планировке территории для размещения линейных объектов регионального значения Ханты-Мансийского автономного округа – Югры"
Номер опубликования: 8600201612160011
Дата опубликования: 16.12.2016
Страница №92 из 778:
Увеличить