Официальное опубликование правовых актов
ОФИЦИАЛЬНОЕ ОПУБЛИКОВАНИЕ
Постановление Правительства Ханты-Мансийского автономного округа - Югры от 14.10.2016 № 397-п
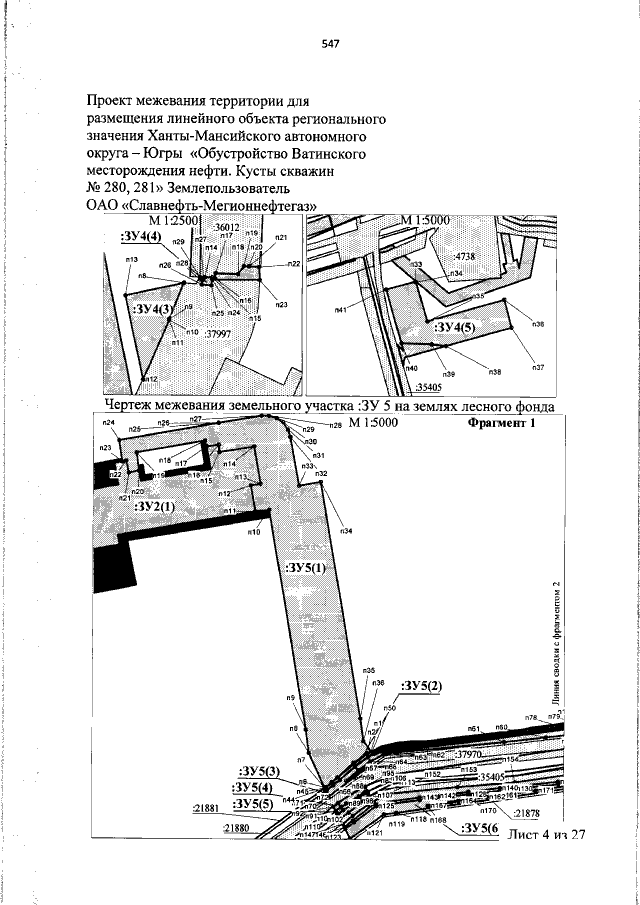
"Об утверждении документации по планировке территории для размещения линейных объектов регионального значения Ханты-Мансийского автономного округа – Югры и о внесении изменений в некоторые постановления Правительства Ханты-Мансийского автономного округа – Югры"
Номер опубликования: 8600201610200008
Дата опубликования: 20.10.2016
Страница №547 из 1093:
Увеличить