Официальное опубликование правовых актов
ОФИЦИАЛЬНОЕ ОПУБЛИКОВАНИЕ
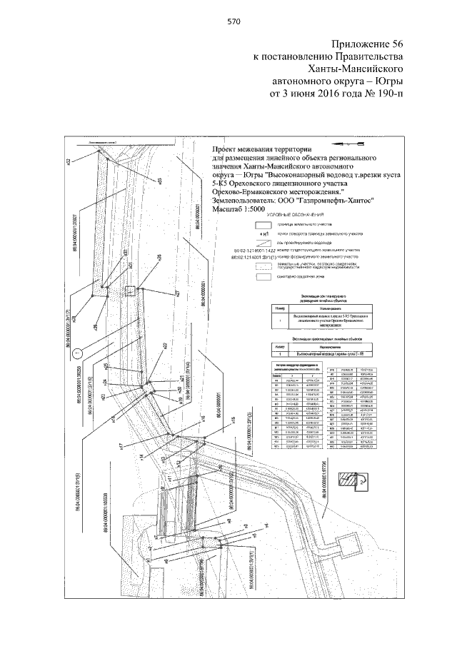
Постановление Правительства Ханты-Мансийского автономного округа - Югры от 03.06.2016 № 190-п
"Об утверждении документации по планировке территории для размещения линейных объектов регионального значения Ханты-Мансийского автономного округа – Югры и о внесении изменений в постановление Правительства Ханты-Мансийского автономного округа – Югры от 11 марта 2016 года № 67-п "Об утверждении документации по планировке территории для размещения объектов регионального значения Ханты-Мансийского автономного округа – Югры и внесении изменений в некоторые постановления Правительства Ханты-Мансийского автономного округа – Югры"
Номер опубликования: 8600201606080002
Дата опубликования: 08.06.2016
Страница №570 из 1039:
Увеличить