Официальное опубликование правовых актов
ОФИЦИАЛЬНОЕ ОПУБЛИКОВАНИЕ
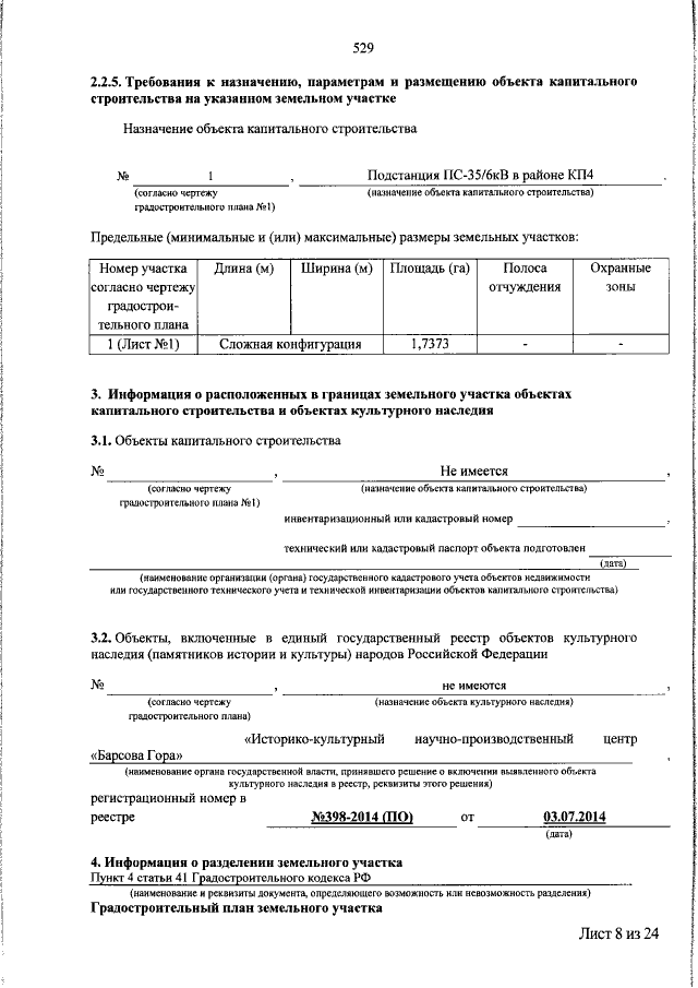
Постановление Правительства Ханты-Мансийского автономного округа - Югры от 20.05.2016 № 170-п
"Об утверждении документации по планировке территории для размещения линейных объектов регионального значения Ханты-Мансийского автономного округа – Югры и о внесении изменений в приложения 12, 14 к постановлению Правительства Ханты-Мансийского автономного округа – Югры от 18 декабря 2015 года № 462-п "Об утверждении документации по планировке территории для размещения линейных объектов регионального значения Ханты-Мансийского автономного округа – Югры"
Номер опубликования: 8600201605250001
Дата опубликования: 25.05.2016
Страница №529 из 662:
Увеличить