Официальное опубликование правовых актов
ОФИЦИАЛЬНОЕ ОПУБЛИКОВАНИЕ
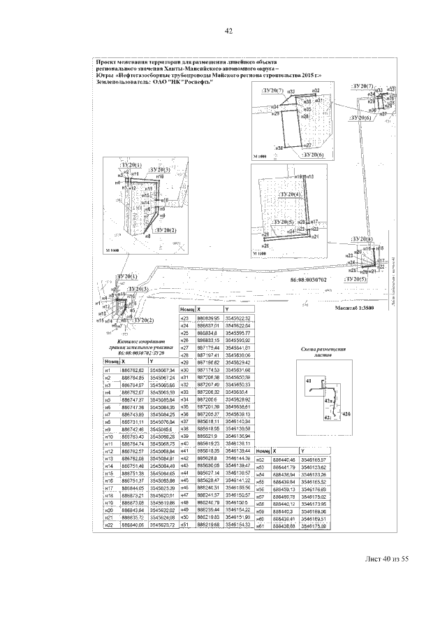
Постановление Правительства Ханты-Мансийского автономного округа - Югры от 11.03.2016 № 67-п
"Об утверждении документации по планировке территории для размещения линейных объектов регионального значения Ханты-Мансийского автономного округа – Югры и внесении изменений в некоторые постановления Правительства Ханты-Мансийского автономного округа – Югры"
Номер опубликования: 8600201603160001
Дата опубликования: 16.03.2016
Страница №42 из 990:
Увеличить